Description
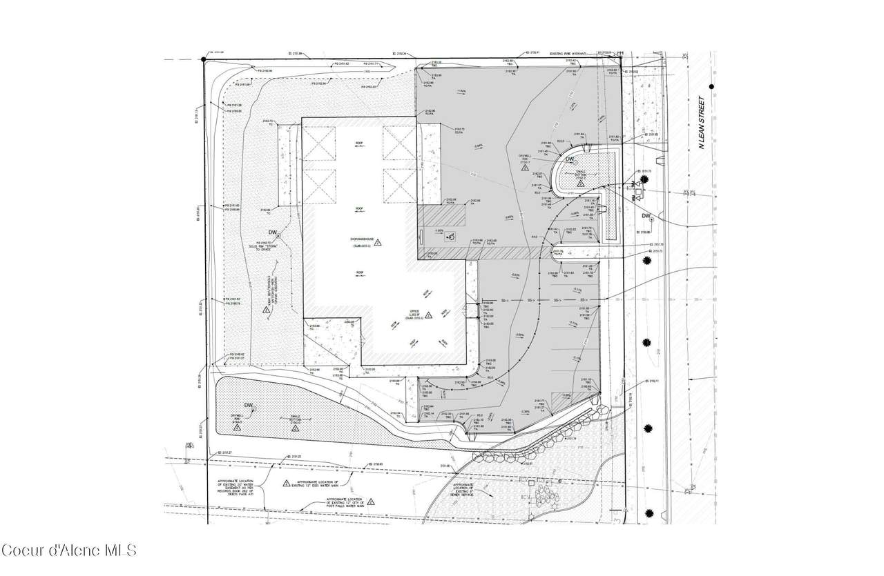
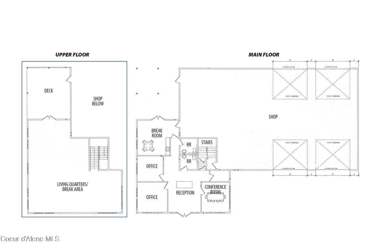
Premier flex industrial building including 3,870SF of shop, 1,320SF of office, and 1,320SF of living quarters that could easily be additional office space. Shop includes four (4) grade doors each 14'x14' with 400amps of service (3-phase nearby if needed). Main floor of the building is supported by radiant heat throughout. Property includes .81-acres on a corner lot fronting Seltice Way. Ample parking available plus outside storage yard.
-
0BEDS
-
0.81ACRES
-
0BATHS
-
01/2 BATHS
School Ratings & Info
Description
Premier flex industrial building including 3,870SF of shop, 1,320SF of office, and 1,320SF of living quarters that could easily be additional office space. Shop includes four (4) grade doors each 14'x14' with 400amps of service (3-phase nearby if needed). Main floor of the building is supported by radiant heat throughout. Property includes .81-acres on a corner lot fronting Seltice Way. Ample parking available plus outside storage yard.
Related Properties
© 2025 Coeur d'Alene MLS. All rights reserved. The data relating to real estate for sale or lease on this web site comes in part from Coeur d'Alene MLS. IDX information is provided exclusively for consumers' personal, non-commercial use and may not be used for any purpose other than to identify prospective properties consumers may be interested in purchasing. Information is deemed reliable but is not guaranteed accurate by the MLS or Coldwell Banker Schneidmiller Realty.Data last updated: 2025-11-13T11:02:38.76.
